


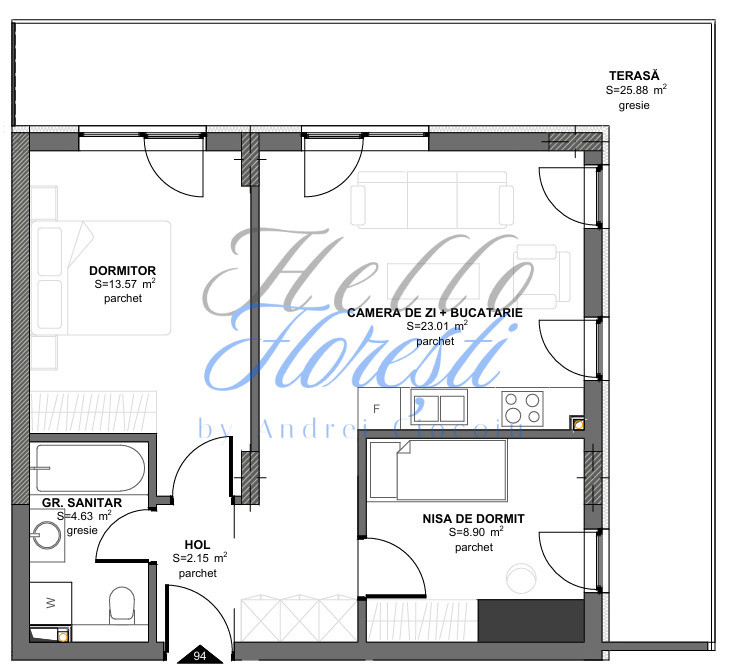
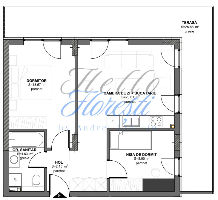
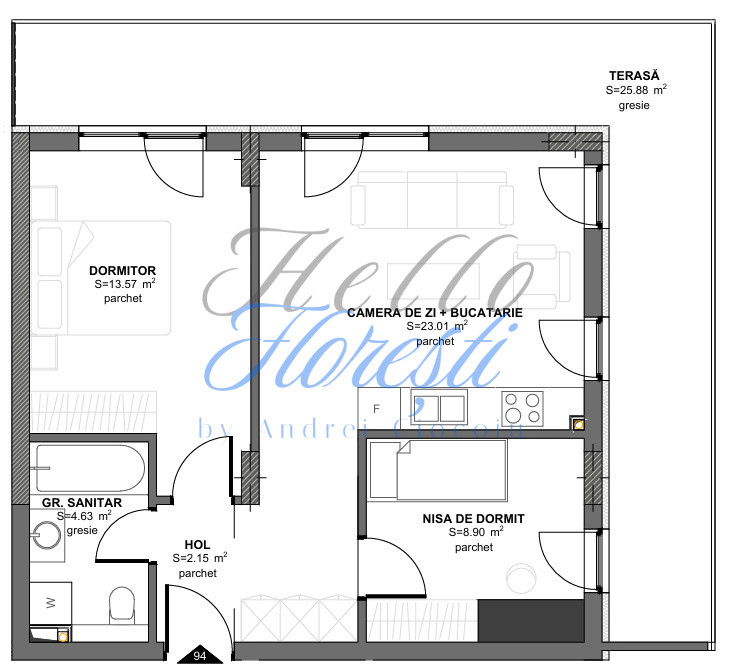
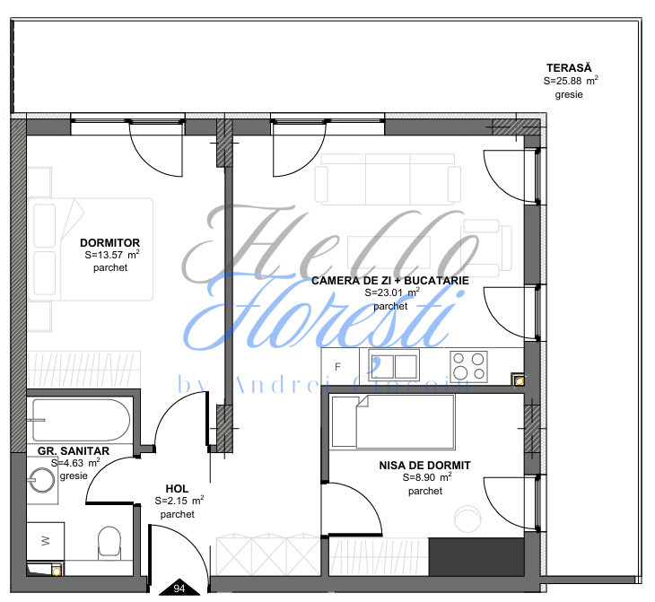
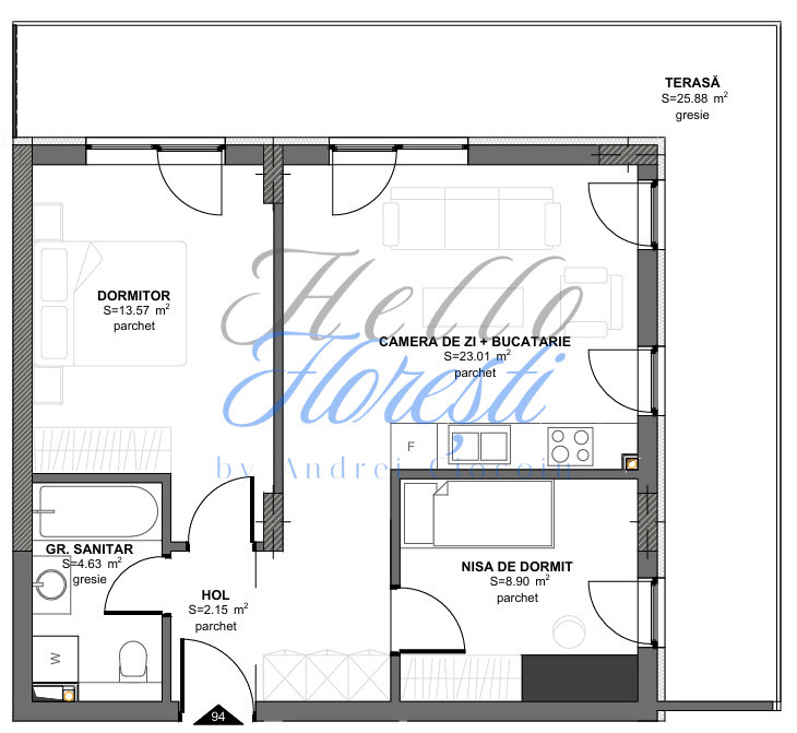
Va propunem spre vanzare apartament cu 3 camere, decomandat, in Floresti, zona Eroilor.
Proprietatea dispune de o suprafata utila de 52,26 mp cu 1 terasa de 25,88 mp.
fiind compartimentat astfel:
- 2 dormitoare
- 1 baie
- 1 bucatarie open space
- 1 hol
Pretabil atat pentru investitie cat si pentru locuinta personala. Pentru mai multe detalii sau programarea unei vizionari folositi ID Extern:P4312