




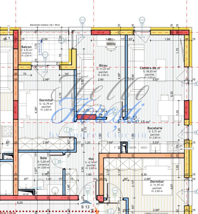
Va propunem spre vanzare un apartament de 3camere in zona Tineretului, Floresti intr-un ansamblu nou construit, compus din 4 scari de de bloc amplasat in zona de case si foarte mult spatiu verde. Caramida aparenta la exterior, izolatie de 15 cm, certificat energeti si incalzire in pardoseala. Apartamentul are suprafata utila de 57,15 mp, este semidecomandat si compartimentat astfel: living cu bucatarie open space, 2 dormitoare , baie si logie de 4, 72mp dupa cum poate fi vazut in schita. Disponibilitati sunt atat la parter cat si etajele 1,2,3 sau 4 al unui bloc cu regim de inaltime D + P + 4E + 1ER. Bloc cu finisaje aparte incepand de la fatada pana la etajul retras al scarii de bloc(tencuiala si glet date cu ultima generatie de tehnologie din domeniul constructiilor), lift. Predarea imobilului se va face pana in luna Mai 2026, urmand ca pana in luna Octombrie sa fie emise cartile funciare pentru fiecare apartament. Se preda finisat cu: parchet, gresie, faianta, lavabil, geamuri tripan, usi, baie complet utilata, sanitare care pot fi alese din catalogul constructorului, incalzire in pardoseala.Toate baile sunt dotate cu vas de toaleta suspendat si dus cu panou de sticla.De asemenea scicla securizata se va gasi si in partea exterioara a logiilor. Parcare exterioara disponibila la pretul de 5600 Euro sau subterana la pretul de 9520 Euro. In pretul afisat este inclus TVA-ul de 21%. Pentru mai multe detalii sau pentru programarea unei vizionari va asteptam la telefon. Compartimentarile pot fi vazut in prima scara de bloc deja construita.ID Extern: P4565