



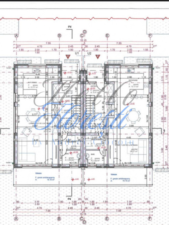
Va propunem spre vanzare duplex cu 4 camere in Cluj-Napoca zona Borhanci. Proprietatea dispune de 130 mp utili si 240 mp teren, fiind compartimentata astfel:
Parter:
- 1 bucatarie
- 1 living cu zona de dining
- 1 spalatorie
- 1 baie
- 1 hol
Etaj:
- 3 dormitoare
- 2 bai
- 1 hol
Duplexuri este dotat cu geamuri Salamander BluEVOLUTION SL92 premium (3 sticle) cu jaluzele incastrage electrice, încălzire în pardoseală, placa beton peste etaj. , include incalzire pardoseala, sape, 2 maini de glet. Posibilitate mansardare 4 camere SU 130.00 mp
Predarea se face la stadiul de semifinisat
Pretabil atat pentru investitie cat si pentru locuinta personala. Pentru mai multe detalii sau programarea unei vizionari folositi ID Extern: P4238