





Va propunem spre vanzare, duplex nou cu 2 unitati disponibile, regim de inaltime P+1, construite in 2024.
Se afla in zona centrala Chinteni.
Proprietatile se predau semifinisate.
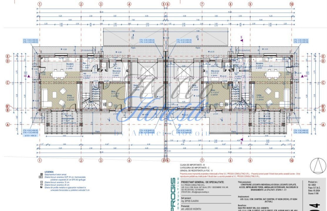
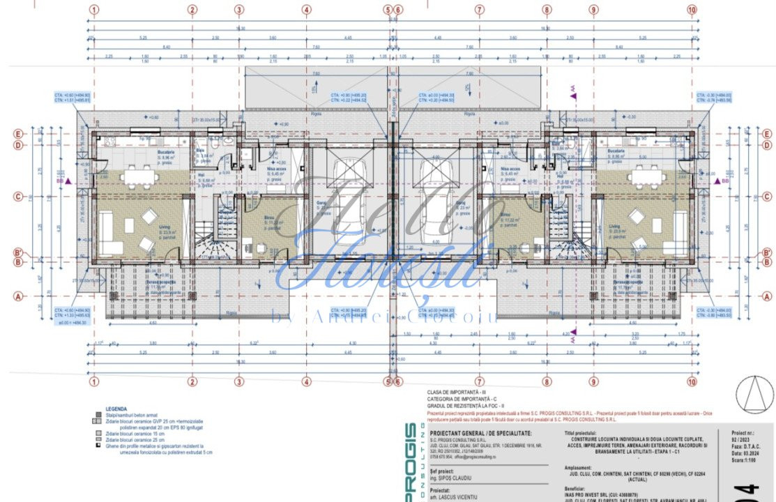
Fiecare proprietate are o suprafata utila de 146 mp, plus 23 mp pentru garaj.
Amprenta la sol este de 60 mp, iar balconul are o suprafata de 8 mp.
Terasa masoara 32 mp, iar curtea are 430 mp.
Compartimentarea include la parter, veti gasi un living cu bucatarie open space, o baie de serviciu, un birou si un spatiu de depozitare sub scara.
La etaj doua dormitoare normale, un dormitor matrimonial cu baie proprie si o baie pe hol.
Proprietatile beneficiaza de toate utilitatile necesare, avand o parcare exterioara si un garaj.
Pentru mai multe informatii sau pentru a programa o vizionare, nu ezitati sa ne contactati!
ID Extern: P4627