


Va propunem spre vanzare o casa tip duplex cu 4 camere in Tauti, Cluj. Aceasta dispune de o suprafata utila de 136mp, suprafata terenului fiind de 300mp dintre care 66mp este amprentra la sol, ceea ce inseamna ca avem o suprafata de teren liber de 234mp. Compartimentarea casei care dispune de un regim de inaltime P+1+pod este urmatoarea:
-Parter: la parter avem bucataria open space si zona de living cu loc pentru luat masa si acces pe terasa
- hol
- baie
- debara
- casa scarilor catre etajul 1
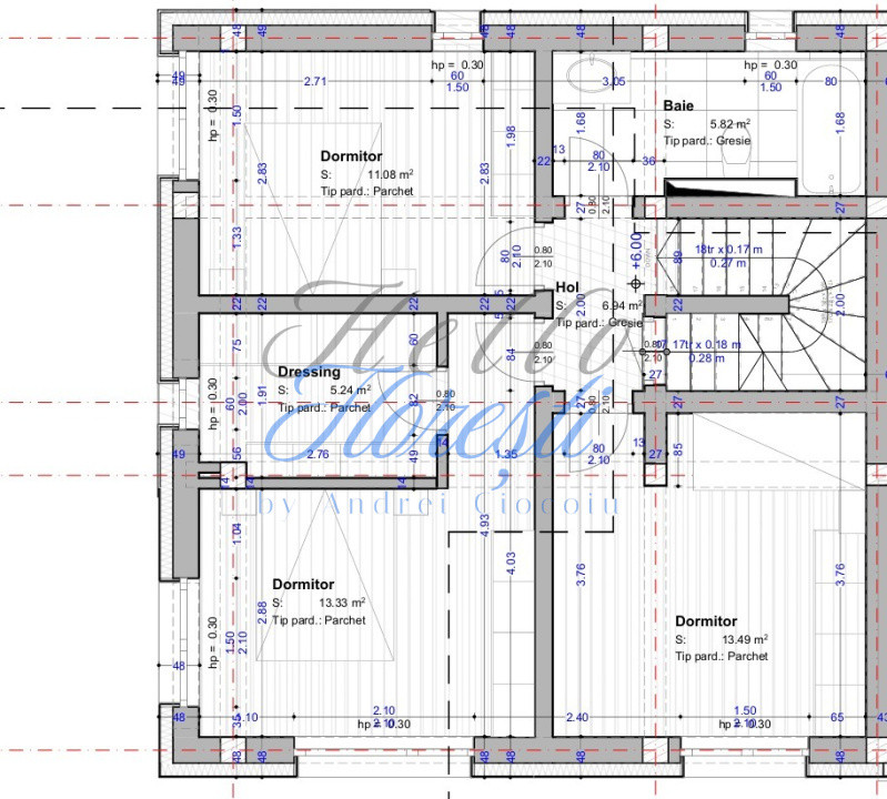
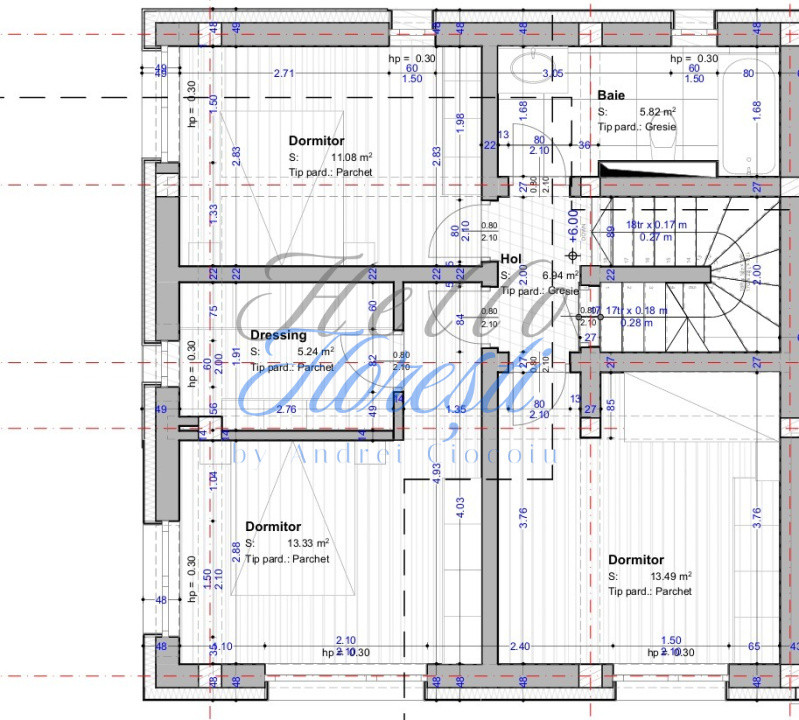
-Etaj: la etaj avem 3 dormitoare
-o baie spatioasa
- hol
- dresing spatios
- casa scarilor
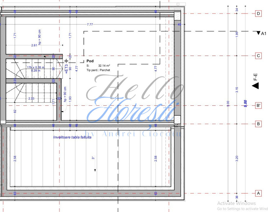
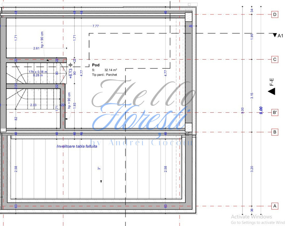
Deasupra etajului este un pod.
Anul constructiei este 2025, casa construita cu materiale de inalta calitate. Acces rapid catre Floresti, aproximativ 5 minute cu masina pana la Parcul Poligon, iar pana la Vivo aproximativ 10 minute cu masina. La achizitia de pe persoane juridice se aplica taxare inversa (nu se plateste TVA). In curte avem doua locuri de parcare, iar in spatele casei se gaseste gradina care poate fi amenajata dupa propriul gust. Pentru mai multe detalii sau pentru a programa o vizionare va rugam folositi ID EXTERN: P4795