


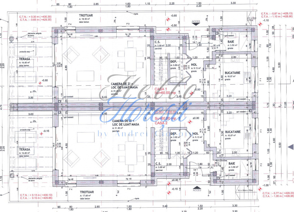
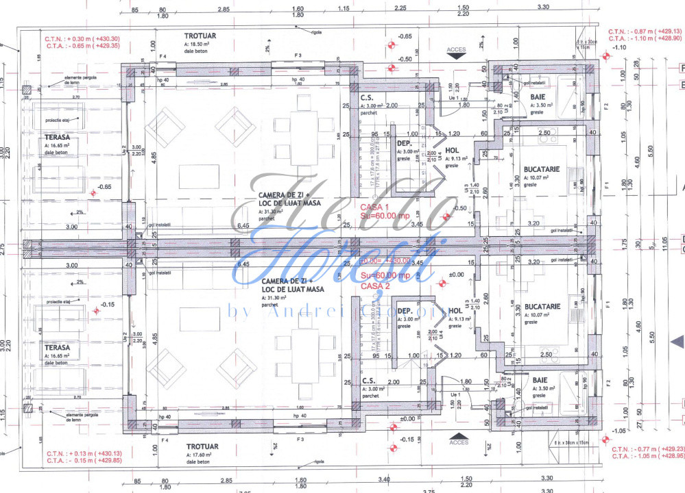
Va propunem spre vanzare duplex in Floresti zona X, cu o suprafata utila totala de 136.1mp. Imobilul are un regim de inaltime P+1 si este compartimentat astfel:
- Parter - Camera de zi cu loc de luat masa 31.30mp
- Hol 9.13mp
- Bucatarie 10.07mp
- Baie 3.5mp
- Debara 3mp
- Terasa 16.65mp
- Etaj - Dormitor 13.05
- Dormitor 12.07mp
- Dormitor 13.65mp cu Dresing 3.06 si Baie proprie 4.37mp
- Hol 8.4mp
- Baie 4.85mp.
Duplexul se vinde la stadiu de semifinisat.
Pretabil pentru locuinta personala. Pentru mai multe detalii sau programarea unei vizionari folositi ID Extern: P4171