


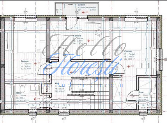
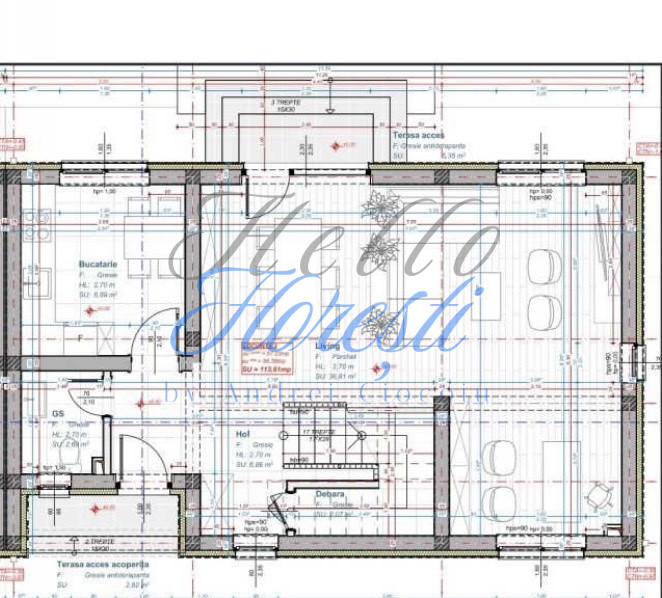
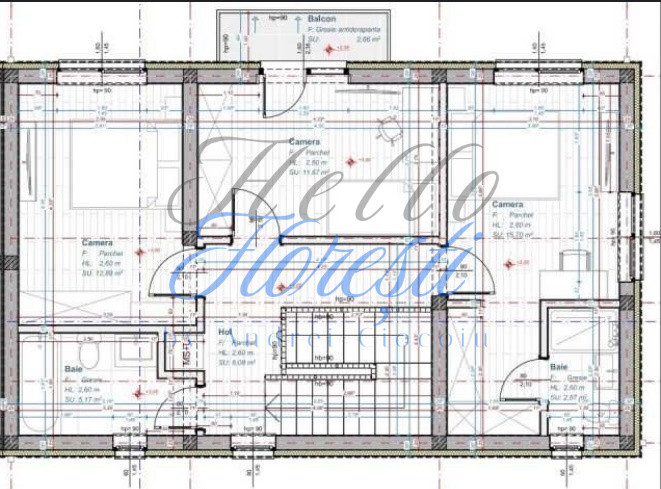
Va propunem spre vanzare duplex cu 4 camere in Tauti. Proprietatea dispune de o suprafata utila de 118 mp si un teren de 171 mp, fiind compartimentata astfel:
Parter:
- 1 bucatarie
- 1 baie
- 1 bol
- 1 living
Etaj:
- 3 dormitoare
- 2 bai
- 1 hol
- 1 balcon
Proprietatea se preda la stadiul de semifinisat
La pretul afisat se adauga TVA
Pretabil atat pentru investitie cat si pentru locuinta personala. Pentru mai multe detalii sau programarea unei vizionari folositi ID Extern:P4797