


Va propunem spre vanzare duplex cu 5 camere in Chinteni. Proprietatea dispune de o suprafata utila de 113.38 mp si un teren de 480.55 mp, fiind compartimemtat astfel:
Parter:
- 1 baie
- 1 dormitor
- 1 bucatarie open space cu livingul
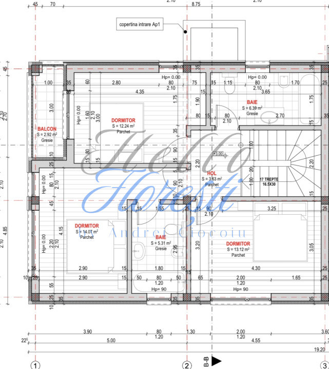
Etaj:
- 3 dormitoare
- 2 bai
- 1 balcon de 2.92 mp
Predarea se va face la stadiul de semifinisat
La pretul afisat se adauga TVA
Pretabil atat pentru investitie cat si pentru locuinta personala. Pentru mai multe detalii sau programarea unei vizionari folositi ID Extern: P4249