




Ocazie unică! Casă pe un singur nivel, situată în Popești, jud. Cluj –chiar tu poți fi următorul proprietar!
Propunem spre vânzare o locuință unifamilială nouă, parte dintr-un ansamblu format din două case identice, amplasată într-o locație excelentă, liniștită, cu un foarte mare potențial de viitor.
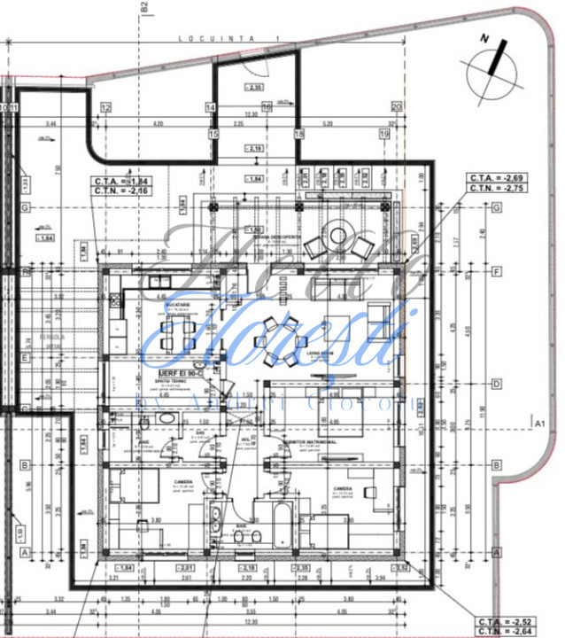
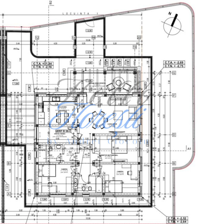
Proprietatea dispune de o suprafață utilă de 114 mp, toate camerele fiind situate pe un singur nivel (parter), ideal pentru familii/ cupluri.
Caracteristici:
- Suprafață teren: 500 mp;
- Suprafață construită: 146 mp;
- Suprafață utilă: 114 mp;
- Terasă deschisă de 18 mp;
- Compartimentare: living, bucătărie, două băi, dormitor matrimonial, două dormitoare secundare;
Carte funciara, predare imediata, proprietatea se vinde la stadiul de semifinisat.
Perfect pentru o viață confortabilă, aproape de tot ce ai nevoie – fie pentru un nou „acasă”, fie ca investiție.
Pentru programarea unei vizionări sau mai multe detalii contactați-ne folosind ID extern: P4179.