


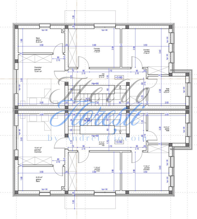
Va propunem spre vanzare duplex in Floresti cu suprafata utila totala de 200.79mp. Duplexul este construt pe un regim de inaltime P+1 si este compartimentat astfel:
- Parter
- Living cu bucatarie open space
- Hol
- Baie
- Dormitor
- Casa scarilor
- Terasa12.79mp
- Etaj
- Dormitor cu baie proprie
- 2 Dormitoare
- Hol
- Baie.
In loc de pod avem o terasa cu suprafata de 52.07mp.
Loc de parcare in fata imobilului.
La cerere se paote finisa si mobila dupa cerintele dumneavoastra.
Pentru mai multe detalii sau programarea unei vizionari folositi ID Extern: P4882