


Va propunem spre vanzare casa cu 4 camere in Chinteni. Proprietatea dispunde de o suprafata utila de 252 mp si un teren de 841 mp, fiind compartimentat astfel:
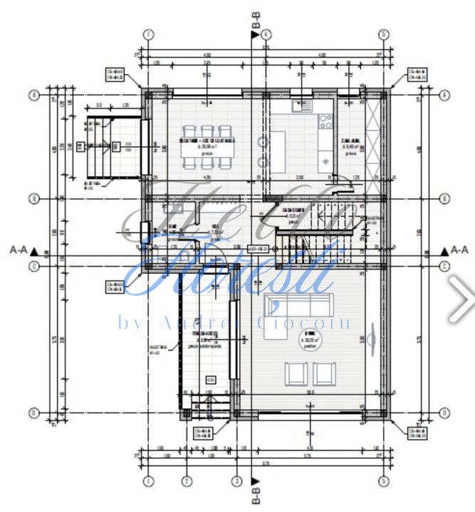
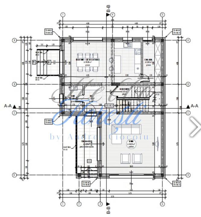
Parter:
- 1 living
- 1 hol
- 1 bucatarie cu loc de luat masa
- 1 camara
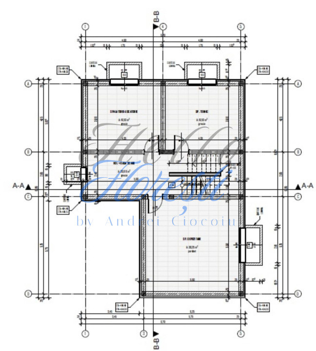
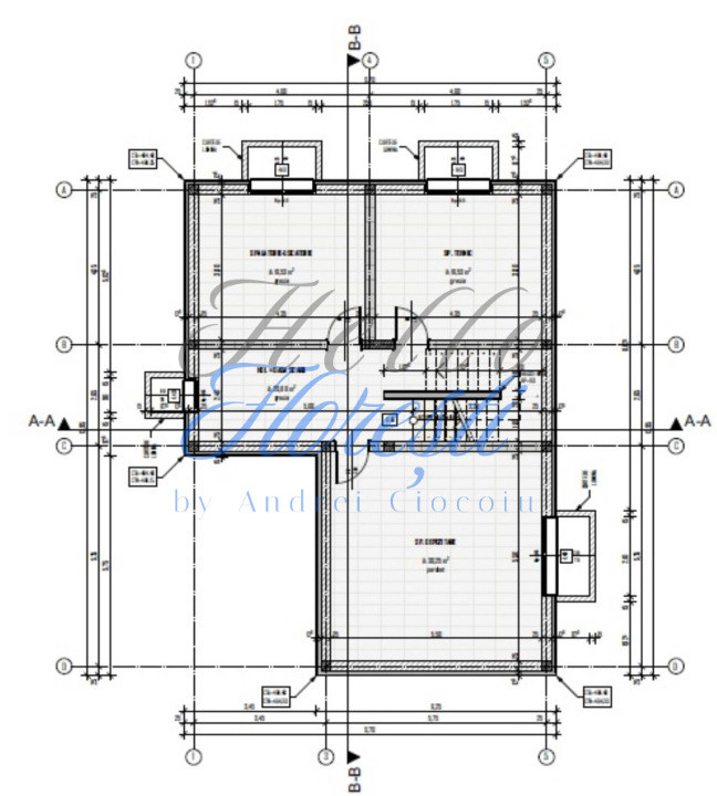
Etaj:
- 3 dormitoare fiecare dormitor avand terasa proprie
Proprietatea are ca regim de inaltime S+P+E si predarea se va face la stadiul de semifinisat.
Pretabil atat pentru investitie cat si pentru locuinta personala. Pentru mai multe detalii sau programarea unei vizionari folositi ID Extern: P4124