



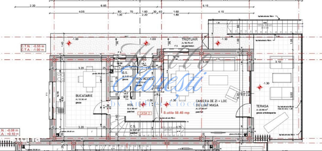
Va propunem spre vanzare o casa tip duplex in Floresti zona Razoare Aceasta dispune de o suprafata utila de 180 mp, suprafata terenului fiind de 270 mp dintre care 65 mp este amprentra la sol, ceea ce inseamna ca avem o suprafata de teren liber 205 mp si terase de 79,8 mp. Compartimentarea casei care dispune de un regim de inaltime S+P+E+ER este urmatoarea:
-Parter: Camera de zi, bucatarie, antreu, baie si o terasa generoasa de 20,9mp
-Etaj: 3 dormitoare,antreu, baie de serviciu, unul dintre dormitoare este matrimonial cu acces la baie proprie. De asemenea unul dintre dormitoare are acces la un balcon propriu cu expunere vestica
-Etaj retras: Terasa circulabila in suprafata de 58.9mp
Proprietatea detine un sistem de incalzire in pardoseala, are curtea amenajata cu pavele. Proprietatea se va preda la stadiul de semifinisat. Anul constructiei este 2025 cu predare in Mai 2026, casa construita cu materiale de inalta calitate, izolatie de 20cm, ferestre tripan pentru un plus de confort si sistemul de incalzire in pardoseala atent ales. Curtea este asezata astfel, in fata casei avem doua locuri de parcare, iar in spatele casei se gaseste gradina care poate fii amenajata dupa propriul gust. Intreaga proprietate este imprejmuita cu gard. Pentru mai multe detalii sau pentru a programa o vizionare va rugam folositi ID EXTERN: P3461